1866-1874 County Rd 12 Road, Prince Edward County, ON K0K 2T0
MLS®# : X12236280
$ 4,295,000.00


Property Description

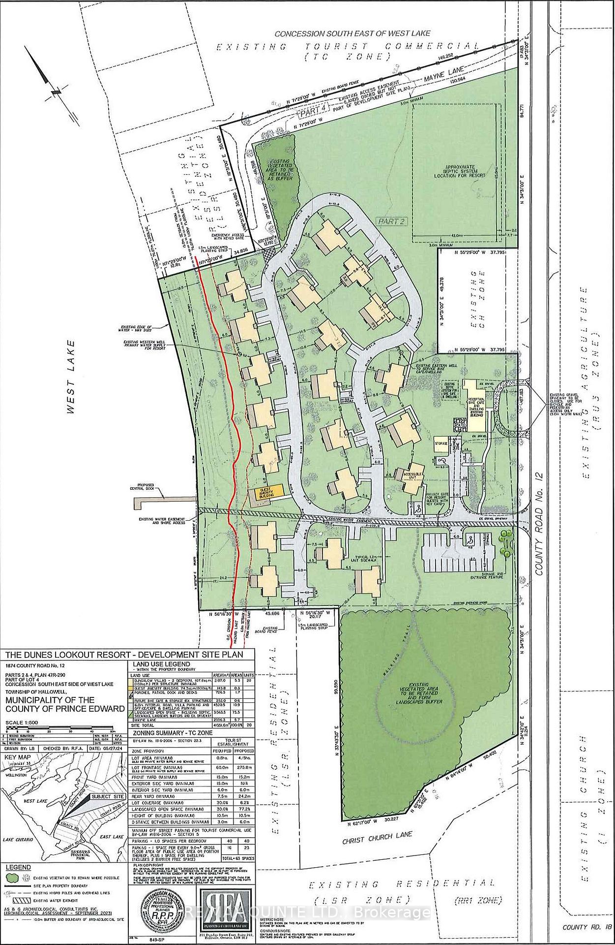
Prime cottage compound site for a multi generational family. Set on 10.5 acres with 550 feet of prime waterfront on West Lake and 905 feet of frontage on County Road 12, this property has been rezoned to allow for the creation of up to 20 cottages which could be one large cottage and several additional ones. The rezoned to resort approved vision also includes a bike retail shop and a restaurant cafe, perfectly positioned to capitalize on the steady flow of visitors to nearby Sandbanks Provincial Park. The view of the sandbanks and the ability to utilize the waterfront for swimming, boating and fishing has no equal in Eastern Ontario. Your family deserves this opportunity. Century Brick Duplex included at front of property. Seller also is offering separate parcel at 1856 Cty Rd 12 for $475,000. 

Location Description

Highway 62 & County Rd 12

Listing Contracted With: RE/MAX QUINTE LTD.