439 ALICE Avenue, Kitchener, ON N2M 2A3
MLS®# : X12845218
$ 514,900.00


Property Description

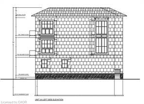
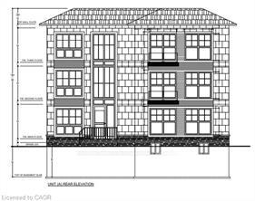
Approved by the City of Kitchener. Attention developers and investors! 6 units possible here. Redevelopment site for 2 triplex's (built as 2 x semi-detached with 3 units in each - see photo gallery for conceptual rendering). Plans attached as supplement documents. Existing structure is best to be ripped down. This property is brimming with potential-pre-approved by the City of Kitchener for a triplex redevelopment. Situated on a large lot in the heart of Kitchener. The existing home currently offers 3 bedrooms and 1 bathroom, providing a solid foundation for renovation or expansion. Conveniently located near public transit, the LRT, Google, Victoria Park, shopping, and other key amenities, this property presents an incredible opportunity for those looking to invest or undertake a full home renovation. 

Location Description

ESTMOUNT RD - KARN ST - ALICE AVENUE

Listing Contracted With: RE/MAX TWIN CITY REALTY INC.